


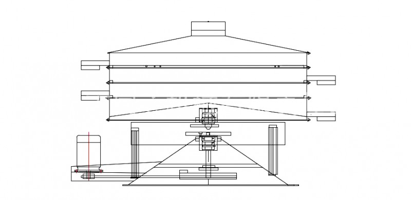
搖擺篩的工作原理是:利用偏心機構使位于上層的篩框做偏心圓周運動,從而使篩框中的物料相對篩網做漸開線滑動。由于篩框的偏心圓周運動,物料運動為三維復合運動。這種物料運動具有較高的優越性,使篩分效率和篩分效果更佳。同心廠家生產供應大產量圓形精細篩分機篩分粘性大纖維多的圓形振動搖擺篩振動篩








為什么我司能實現產品的高品質、低價格???
1. 我司自有土地和廠房,沒有房租成本,更多讓利客戶;
2. 我公司有20余年的生產實踐經驗,具有成熟的技術團隊,高級工程師1人,中級工程師1人,能對用戶各種需求做出迅速有效的響應;
3. 配備自動化生產設備,如激光切割機、激光焊機、加工中心、數控車床、機械臂、自動拋光機、數控折彎機、剪板機,效率高、人工成本低;
4. 大量的設備保保證了產品的重復性和一致性,使篩機篩分效果得到保障;
5. 原材料大批量采購,成本相對較低。



我公司生產經營20余年,設備在國內各地均有使用客戶,更遠銷美國、加拿大、俄羅斯、泰國、馬來西亞、澳大利亞、非洲等30多個國家,為萬余家客戶的生產提供了便利和效率的提升。
同心公司與國內很多大企業均有常年合作我公司常年給國內大型公司供貨,如正大集團北方區、中糧集團,鄭州二砂集團(原白鴿集團),中國神華、河南金渠黃金股份有限公司、攀鋼集團,中國磨料進出口公司、南昌統一、山東晨星等國內知名企業供貨,還給科研單位如:清華大學、中南大學、中科院物理研究所、廈門醫科高等??茖W院、中國科大、重慶煤科院,鄭州工業大學、陜西省水文水資源勘測局、中國醫藥管理局,陜西中醫藥管理局等科研單位供應。
你身邊的同行都在用同心機械的設備
你還在等什么?
